Search
2026 Volume 6
Article Contents
ARTICLE   Open Access    

Retrieving coastal communities of Bangladesh from natural calamities in a changing climate: pathways toward the sustainable development goals

More Information

Figures(13)

Article Metrics

Article views(1472) PDF downloads(282)

Other Articles By Authors

ARTICLE   Open Access    

Retrieving coastal communities of Bangladesh from natural calamities in a changing climate: pathways toward the sustainable development goals

Emergency Management Science and Technology  6 Article number: e001  (2026)  |  Cite this article

Abstract: Bangladesh faces significant threats to its coastal areas from cyclones, erosion, inundation, and salinity intrusion. Despite effective disaster management policies, these disasters continue to disrupt social life and financial stability. Climate change exacerbates these challenges by increasing the frequency and severity of natural hazards. The inadequate capacity of local populations to cope with these hazards contributes to vulnerability. This research explores strategies to improve the physical, social, and financial resilience of risk-prone coastal communities in alignment with SDG 13, which aligns with the necessity of building resilient communities against the hazards related to climate change. It also deals with the integration of adaptation strategies in local development planning. Coastal residents have developed indigenous knowledge and processes to manage natural events, which aligns with SDG 15, focusing on the sustainable use of terrestrial ecosystems and combating land degradation. Community bonds are crucial in ensuring the sustainable management of coastal land resources, which is central to SDG 15, which deals with biodiversity and degradation of land. The study focuses on capacity building for community empowerment, disaster-resilient settlements, building sustainable houses, enhancing livelihoods, and resilience of the communities towards the changing climate. Additionally, this research supports both SDG 13 and SDG 15 in helping vulnerable communities adapt to climate change while protecting vital ecosystems through the inclusion of efficient management of land and reviving ecosystems.

    • The coastline region of Bangladesh is commonly regarded as an area with numerous hazards. Over the past two centuries, nearly 70 severe cyclones have struck along the country's coast. Approximately 900,000 people have lost their lives in the last 35 years as a result of these devastating cyclones[1]. Nevertheless, Bangladesh frequently experiences catastrophic natural events, and its inhabitants are accustomed to them. However, the current phenomenon of climate change (SDG 13) has exacerbated these natural disasters. This situation is worsening in terms of its number and intensity because of climate change[2]. The natural disasters encompassed in this list are tidal floods, cyclones, storm surges, salinity intrusion, river erosion, and droughts. The coastal inhabitants have observed that the number of cyclones in a season is increasing in recent years. Despite implementing the Cyclone Preparedness Program (CPP), which includes measures such as multipurpose shelters, an efficient system, and dissemination of early warning, cyclones in Bangladesh still have significant negative impacts on the socioeconomic well-being of its people[3]. However, the number of casualties has decreased significantly because of this CPP.

      Because of environmental degradation and climate change, the IPCC has identified coastal habitats as a primary source of catastrophe risk (SDG 13: Climate Action, SDG 15: Life on Land)[4]. Despite the challenges, there is a lack of overall solutions for enhancing the general way of life through planned settlements to construct disaster-resilient communities in hazard-prone areas. The focus on physical enhancement in coastal regions often overlooks socioeconomic difficulties. SDG 15 calls for restoring and protecting ecosystems, including coastal habitats, to improve resilience against natural disasters. Climate variability and change are expected to influence coastal habitats and local populations relying on natural resources. The IPCC-TAR has determined that poor Asian nations have a low adaptive capacity and high susceptibility, while industrialized countries can adapt and have lower vulnerability[5]. More adaptation is necessary to tackle the heightened consequences of climate change, which is in line with SDG 13, which aligns with the necessity of building a resilient community against the hazards related to climate change.

      This study highlights the significance of community-based approaches in disaster risk reduction techniques in response to evolving climates. It also emphasizes the importance of local resources and indigenous knowledge in enhancing coastal communities' physical, social, and economic capabilities; a strategy supported by SDGs 13 and 15. Community-based approaches play a significant role in resolving the adverse impact of a changing climate, including lowering losses, damages, and suffering. Coastal indigenous tribes have devised survival tactics rooted in their cultural identity and intimate connection with the natural environment. They possess inherited, well-established knowledge and socialization methods and distinctive housing construction practices that involve meticulous design, which is highly efficient in addressing cyclones. The study emphasizes the necessity for these communities to adjust to climate change and formulate efficient tactics for enduring and safeguarding their valued possessions, contributing to the goals of both SDG 13 and 15 in promoting sustainable and climate-resilient communities.

    • i. Understand the life, livelihood, and settlement pattern of coastal Bangladeshis, the link between poverty and degradation of the environment, and how both crises drive each other in complicated ways and reduce their adaptive potential.

      ii. To analyze the vulnerability of coastal communities towards hazards in changing climates and their resource and knowledge capacity to cope with them.

      iii. To develop a plausible theory and a resilient community in Bangladesh's coastal areas using local resources and indigenous knowledge, focusing on technology, social sciences, community empowerment, and women empowerment, and learning from current experiments with new paradigms.

    • This study adopts a qualitative multiple case study approach to examine how coastal communities in Bangladesh respond to climate-induced hazards and how these responses contribute to resilience building. The research combines field-based investigation with secondary analysis to capture community practices, settlement dynamics, and adaptation strategies within their environmental and policy contexts.

    • This study uses the qualitative method of multiple case studies in order to understand how coastal communities in Bangladesh perceive and respond to climate-induced hazards and how these responses can be used to inform the process of resilience building in line with SDG 13 (Climate Action), and SDG 15 (Life on Land). The research design consists of two elements: a field-based inquiry (using interviews, observations, and documentation of settlements) and a secondary analysis of policy documents, scientific literature, and disaster reports.

    • The empirical analysis is concentrated on coastal locations like Urir Char, the south-western coastal districts such as Khulna, Satkhira, etc. Cases were chosen using purposive sampling and were based on four criteria. They are: high exposure to climate-induced hazards, ecological diversity, variation in livelihood patterns, and the presence or absence of resilience interventions. Urir Char was selected as a prototype resilient settlement due to the experience of an experiment on planned cyclone-resistant housing in 1985−1991, whereas Khulna–Satkhira and other south-western localities are highly exposed to disasters caused by climate.

    • Primary data was gathered using semi-structured interviews and field observation of housing, settlements, and local adaptation practices. One hundred and fifty households were interviewed in the sites of choice. The respondents were men and women of various ages. Interviews were conducted in Bangla, were recorded with permission, and supported by the completion of documented and elaborate field notes.

      Secondary data consisted of: A comprehensive review of the most recent relevant works regarding the compilation of knowledge that is the foundation for the research. Scientific and technical reports to the historical data of cyclones, damage and loss assessments, and the newspaper archives. Published literature on local adaptation strategies, vulnerability, and resilience of the coastal communities of Bangladesh.

    • The research will be structured using a case study method, focusing on the diverse aspects of coastal habitats and the utilization of local resources and Indigenous knowledge by those who belong to the community.

    • Chronological change or development of coastal habitat, figure plans of different periods, aerial views—photos, blueprints, and drawings of the selected settlements will be prepared and collected for subsequent analysis and their transformation over time.

    • To analyze the selected cases, the research adopts the following methods:

      (1) Chronological coastal habitat changes in response to natural hazards and climate change.

      (2) Observation and detailed analysis of local practices (uses & experiences) to adapt to natural disasters in a changing climate.

      (3) Analysis discourse: Analysis of popular media (literature, newspapers, magazines and television).

      (4) Interview and documentation.

    • The present research paper is grounded in a climate risk and resilience framework that addresses the process already underway on the global climate to the present outcome on a local level, with the help of four related components: (i) climate change; (ii) disaster risk; (iii) vulnerability of the community; and (iv) building resilience. These elements are directly linked with the SDG 13 (strengthening adaptation and resilience) and SDG 15 (protect and restore terrestrial and coastal ecosystems).

      In the Bangladesh coastal area, indigenous and local knowledge is used in preserving the ecosystem and managing land sustainably. Therefore, indigenous knowledge goes beyond being a coping mechanism and is a local manifestation of SDG 15, i.e., to support conservation and restoration of degraded land and to increase community resilience.

      The paper conceptualizes livelihood diversification (e.g., saline-tolerant rice, vegetable gardening, non-farm activities, integrated homestead farming) as an important factor driving resilience through three pathways: Adaptive capacity and Transformative capacity. Such a theoretical frame assists in the interpretation of empirical cases (e.g., Urir Char, SIDR, and Aila-impacted settlements) and the creation of a set of community-focused resilience in the following sections.

      Comparative analytical framework[6]: In all cases, the empirical data is compared independently, categorized with its observed phenomena, tested, double-checked, and compared with the other selected cases to find similarities and differences to facilitate valid generalization. Thus, the research outcome will help to give specific guidelines to provide an adaptation strategy to build a resilient coastal community in a changing climate involving local people.

    • Climate change is a very concerning subject in today's world, causing people to be concerned about their lives, livelihoods, and habitats. Bangladesh is experiencing significant negative impacts because of climate change. According to the IPCC, Bangladesh is among the nations that would face a higher likelihood and greater severity of catastrophic climatic occurrences[7]. The country's ranking rose to 6th among nations impacted by natural disasters in a changing climate.

    • Bangladesh's climate is anticipated to become warmer and more erratic, with more precipitation and longer dry periods. It is predicted that, in the future, maximum and minimum temperatures are likely to increase, with minimum temperatures rising by 2 to 5 °C and maximum temperatures falling slightly[8]. Maximum temperatures will increase by 2 to 3 °C by the middle of the century, and temperatures may rise by 4 °C within this century compared to the baseline period 1970–1999[9].

      It is also evident that the total rainfall in Bangladesh has increased broadly. Rainfall in the country's North East portions will increase the most, and in the South West portions, it will be the least. Total precipitation is expected to rise within this century compared to the 1970–1999 baseline, primarily due to increased precipitation intensity, while the number of rainy days will likely remain unchanged. Additionally, the frequency of dry spells is projected to rise, with more days without precipitation. Although future conditions are uncertain, current trends suggest changing weather patterns.

    • Bangladesh is now coping with several challenges and is prone to various manmade and natural disasters. Climate change will increase the vulnerability to specific threats. The BCCSAP (Bangladesh Climate Change and Action Plan) and NAPA (National Adaptation Programme of Action 2005) outline the future implications of climate change[10,11].

      (1) Increased vulnerability to natural hazards in a changing climate.

      (2) The frequency and severity of tropical cyclones are increased due to higher wind speeds and storm surges.

      (4) Irregular and higher rainfall leads to extensive floods and waterlogging.

      (4) An increased dry spell.

      (5) Expansion of salinity intrusion towards the mainland.

      (6) The rise in sea level is causing submergence of low-lying coastal areas.

      (7) Warmer weather with increased humidity leads to increased diseases.

      (8) These changes will adversely affect the land's physical characteristics and socioeconomic conditions.

    • Bangladesh is a disaster-prone country, with climate change contributing to its vulnerability. Particularly, the coastal region of the country is more vulnerable than the other parts of the country. Natural events like extreme temperatures, erratic precipitation, floods, and cyclones are frequent and intensified. Salinity intrusion has extended towards the deeper portion of the inner coast. As a low-lying deltaic country, Bangladesh already has the risk of sea level rise, for which a significant portion of the coastal lowland and islands could be affected by inundation and tidal flooding[12]. Climate change accelerated the hazards in the coastal areas of Bangladesh, causing significant damage to people's lives, livelihoods, and properties, especially in coastal areas.

    • The Bay of Bengal serves as a source for the formation and development of tropical cyclones. Approximately 10% of all cyclones worldwide are believed to originate here, and nearly 17% of these storms hit the coast of Bangladesh[13]. The coast of Bangladesh, including the Meghna estuary, is prone to storms and destructive tidal surges because of its distinctive coastline. Cyclones originate in the ocean's abyssal depths, traversing one of the planet's most expansive continental shelves, and have the potential to generate tidal surges reaching heights of up to 33 ft above sea level, accompanied by wind speeds of 225 km/h. This calamity substantially affects the country's coastal region[14]. As shown in Fig. 1, the historical paths of cyclones generated in the Bay of Bengal indicate repeated landfall along the coast of Bangladesh, highlighting the long-term exposure of the coastal region to cyclonic hazards.

      Figure 1. 

      The path of cyclones and their landfall location generated in the Bay of Bengal from 1877 to 2016 (source: storm track data from IBTrACS, IMD).

      The ideal conditions for primary cyclone formation include temperatures over 27 °C from a depth of 60 m to the sea's surface and humidity over 40%. The Bay of Bengal's surface temperature typically remains 25−28 °C, but in May, it reached over 30 °C[15].

      Sea surface temperatures rise in May, creating wind shear and enabling cyclogenesis. Scientific studies reveal that sea surface temperature is increasing globally, which has energized storm surges during cyclones. If storm surges become more destructive, coastal low-lying areas may be inundated by severe floods[16]. If ocean temperatures increase by 2–4 °C due to climate change, the number of cyclones produced in the Bay of Bengal will increase with greater intensity. Another adverse impact of temperature rise on the sea surface is that it can turn a weaker cyclone into a destructive, severe cyclone[17]. As shown in Fig. 2, cyclone and storm surge risk indexes demonstrate the high vulnerability of Bangladesh's coastal belt to extreme climatic events.

      Figure 2. 

      Cyclone and storm surges risk indexes[18].

      It is evident from recent scientific research that the number of cyclones has increased with greater intensity in the last 35 years due to climate change[19]. However, some argue against this hypothesis and disagree with it. The International Workshop on Tropical Cyclones (IWTC) suggests that global warming may increase the susceptibility of cyclones to more energetic storm surges and coastal inundation. The peak wind speed and rainfall during tropical cyclones will increase if the climate continues to warm[20]. According to IPCC, the continuation of sea-surface warming could increase the frequency of cyclones with greater wind speeds and increased precipitation, which will be 66% of regular cyclones[21]. This calamity has led to a rapid increase in coastal vulnerability in Bangladesh due to climate change.

    • In addition to the natural risks caused by climate and geography, various other elements must be considered when assessing the vulnerability of individuals living in coastal regions[22]. The following descriptions are provided below.

      i. Income source: Households in low-income groups dependent on natural resources, cultivation, and fishing are most vulnerable due to marginal and uncertain income.

      ii. Household quality: Poor housing can exacerbate risks from natural disasters like cyclones and tidal surges.

      iii. Financial resources and savings: Limited income without savings hampers the recovery from the natural and manmade crisis.

      iv. Household composition and size: Large families with high dependents pose significant challenges to recovery post-disaster.

      v. Education level: Lower educational levels increase susceptibility to crises and shocks.

      vi. Physical location: High-risk exposure from cyclones, especially in low-lying marginal areas, and for low-income families without homes.

      vii. Finally, vulnerable households recognize the interconnected factors contributing to their risks, realize that the problem is shared by multiple communities, and require cooperation or rationalization to mitigate or alleviate these destructive events.

    • In recent years, Bangladesh has faced some major severe cyclones: Cyclone of 1969, Cyclone of 1985, Cyclone of 1991, SIDR in 2007, and Aila in 2009[23]. In this section, the impact and evaluation of the cyclone are discussed.

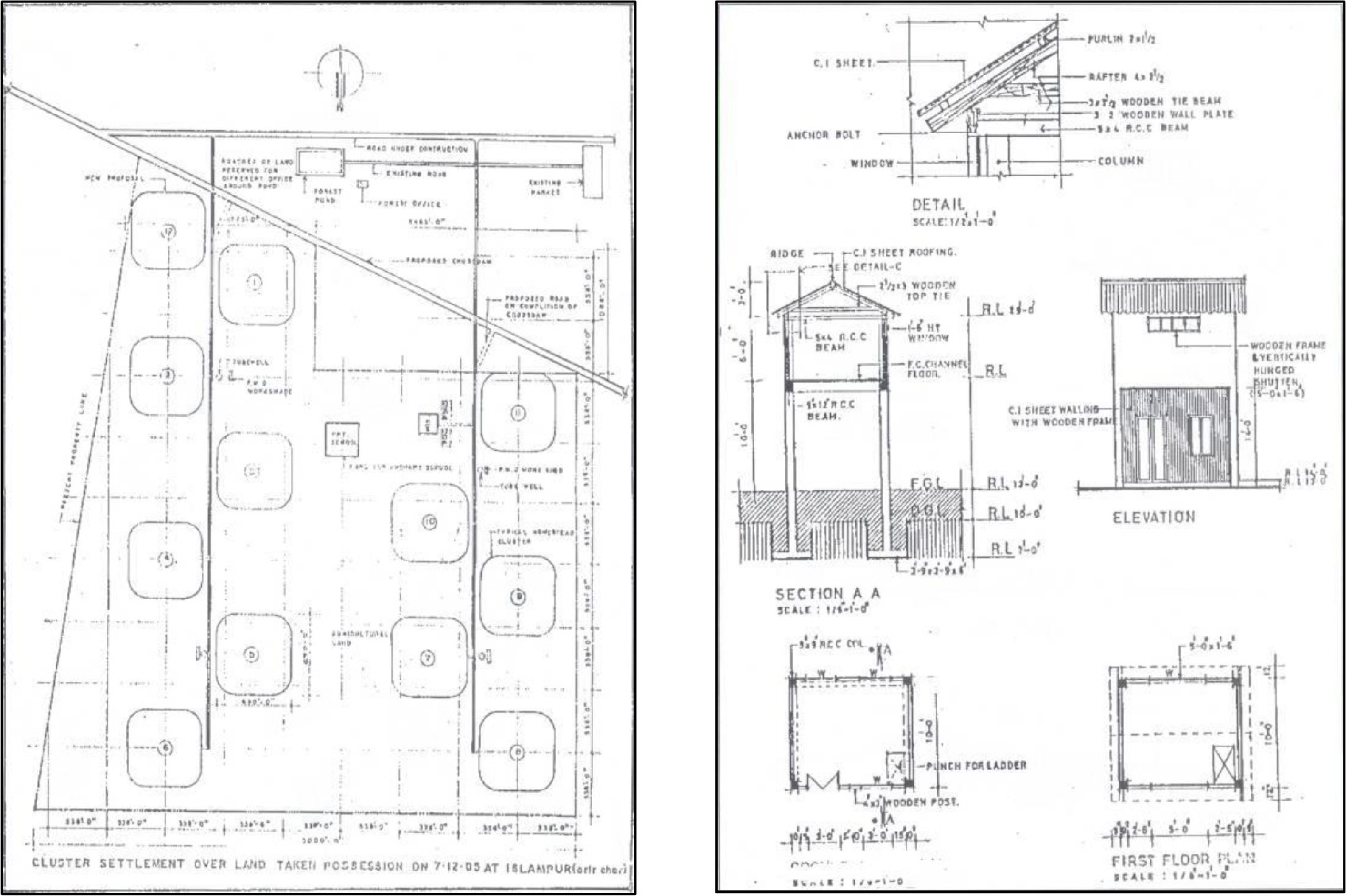
    • Urir Char, a settlement in the Meghna estuary, suffered significant damage from a cyclonic surge in 1985. A national committee was formed to recommend settlement planning. Based on that plan, some cyclone-resilient houses were built at Urir Char. The settlement passed its first field test in 1991 without loss of life or property. After six years, the settlement's homes, clusters, village, and central community zone have grown as planned, demonstrating its resilience. As shown in Fig. 3, the planned settlement layout and housing typologies of the Urir Char Project illustrate an early experiment in cyclone-resilient community design.

      Figure 3. 

      Houses in Urir Char project 1985[24].

    • On April 29, 1991, a super cyclone hit the coast of Bangladesh. It was one of the deadliest tropical cyclones in Bangladesh's history. Forming in the Bay of Bengal, the cyclone passed through Bangladesh with a landfall in Chattagram. A total of 19 districts were affected by the cyclone, where 10,798,257 people suffered directly. 138,882 people were killed because of the cyclone, whereas 139,054 were injured. The estimated cost of the property damage was tk. 145 billion[25] (≈ 4.06 billion USD in 1990 exchange rate).

      The German Red Cross surveyed and studied cyclone-resistant housing in 1991's affected areas, resulting in a published report titled 'BATTLING THE STORM'. The study focused on dialogue with local people rather than experts, ensuring direct involvement in problem identification[26]. Monographs of individual houses were prepared using physical surveys, measured drawings, sketches, and photographs, aiming to improve housing conditions in the affected areas.

    • As shown in Fig. 4, the physical survey of a traditional coastal dwelling documents the spatial organization, material use, and construction techniques employed by local households.

      Figure 4. 

      House of Abdul Jalil, Dangor Para, Teknaf (source: Battling The Storm, Study on Cyclone resistant housing, author).

    • On November 15, 2007, category four hurricane SIDR devastated 30 districts and 8.9 million people in Bangladesh's south. The 20-foot storm surge, severe rains, and tidal waves caused physical ruin, agricultural loss, animal damage, and floods. The cyclone's 220 km/h winds destroyed houses and uprooted trees. The communication and electricity of the South Western coastline were affected by the cyclone. There were 3,406 deaths, 871 missing, and over 55,000 wounded. It uprooted four million trees, damaged transport and communication networks, and damaged private property and livelihood supplies, costing USD 2.3 billion[27]. As shown in Fig. 5, extensive housing damage and the use of temporary shelters after Cyclone SIDR reflect the scale of destruction faced by coastal communities.

      Figure 5. 

      Damaged house and temporary shelter after SIDR (source: author).

    • The southwestern coast of Bangladesh was hit by another severe cyclone named Aila on May 25, 2009, causing significant property damage and casualties. The tidal surge was caused by the heavy force of wind that inundated immense areas. Many houses and settlements in the area were washed away. The flood control embankments and dykes were breached, causing damage to crops and vegetation in the area. Eleven districts and 64 upazilas were affected; among them, Khulna and Satkhira were affected the most. Nearly 325 people were killed, and extensive damage to infrastructure occurred. Over 3.9 million people were affected, with 350,000 acres of crop land destroyed, and 610,000 houses were damaged. People not only lost their homes but also their livelihood opportunities and their source of income[28]. As shown in Fig. 6, post-Aila conditions reveal widespread inundation and prolonged displacement, particularly in embankment-adjacent settlements.

      Figure 6. 

      Left, shelter on an embankment after Aila (source: CDMP). Right, Bainpara was inundated by tidal water (source: CDMP).

      A total of 1,743 km of embankments were damaged, creating a serious secondary disaster of long- term inundation within the vast area. Waterlogging was the main devastation, causing a breakdown in the life and livelihood of the affected areas[29]. Many people were displaced for several months, taking shelter in makeshift houses on embankments.

    • To build resilience in coastal communities, especially in the face of frequent natural disasters like cyclones, it is essential to integrate sustainable development practices that reduce vulnerabilities and protect the environment. One of the key factors contributing to the vulnerability of these communities is the rapid loss of coastal ecosystems, such as mangrove forests, which act as natural barriers against storm surges. The degradation of these ecosystems, combined with rising sea levels, makes the communities more susceptible to extreme weather events. Therefore, implementing sustainable practices such as coastal afforestation and mangrove restoration is crucial for mitigating the impact of cyclones and preserving biodiversity.

      In line with this, SDG 13 (Climate Action) emphasizes the need to combat climate change and its impacts through proactive adaptation strategies, such as building resilient habitats, improving early warning systems, and adopting climate-smart agricultural practices[30]. Coastal afforestation helps prevent erosion and sequester carbon, which is critical in addressing the broader issues of global warming. Similarly, SDG 15 (Life on Land) advocates protecting, restoring, and conserving terrestrial ecosystems, including mangroves and coastal forests. By preserving these natural habitats, this study contributes to biodiversity conservation, enhances ecosystem services, and creates a buffer against the intensifying impacts of climate change[31]. Integrating these efforts into community-level planning ensures the long-term sustainability of both the environment and the livelihoods of those living in coastal regions.

      The Sustainable Development Goals (SDGs) are a global call to action adopted by all United Nations Member States in 2015 as part of the 2030 Agenda for Sustainable Development. These 17 interconnected goals address the world's most pressing challenges: poverty, inequality, climate change, environmental degradation, peace, and justice[32]. SDGs 13 and 15 focus on the importance of climate action and the protection of ecosystems, respectively, guiding efforts to safeguard the planet and improve the quality of life for all people. These combined efforts can build more resilient coastal communities and contribute to achieving SDGs 13 and 15, safeguarding both people and the planet.

    • Before planning any approaches to foster resilient community development, the focus area that should be dealt with must first be recognized. Then, solutions should be explored to resolve those issues. For the comprehensive and integrated approaches to building a resilient coastal community, the focus should be given to addressing the following matters[33]:

      i. Focus on building resilient habitats. SDG 13 (Climate Action): Building resilient habitats means building a resilient community that can adapt to climate change's adverse effects. In this way, the resilient community will be prepared to combat disasters like cyclones, floods, etc.

      ii. Explore alternative and supplemental livelihoods. SDG 15 (Life on Land): By diversifying livelihoods, communities can reduce pressure on land and natural resources, fostering sustainable land management practices.

      iii. Active community participation in policy and planning.

      iv. Use indigenous knowledge for durable house construction.

      v. Improve living standards through diversified livelihoods.

      vi. Build capacity through training, monitoring, and evaluation.

      vii. Integrating Livelihood with Housing for Increased Income

    • Local communities have their own coping strategies and disaster preparedness for climate risks. Empowering them to use technologies and adaptation practices is crucial for better management and enhanced resilience. Four key areas to work on are[34]:

      i. Institutionalization of committees: Community disaster and resilience committees at the union and ward levels should be established with women, youth, marginalized, and local business people being included. These committees are involved in mapping of risks, prioritization of the interventions, as well as monitoring of embankment, shelters, and livelihoods projects.

      ii. Gender-sensitive and youth-friendly engagement: Women-specific consultations will be able to reflect gendered vulnerabilities and adaptation knowledge. The youth can be trained to disseminate early warnings, first aid, and manage shelters, which connects the participation with skills and employment opportunities.

      iii. Social action: Facilitating the availability of government programs and services and actively working against corruption. SDG 13 (Climate Action): Empowering local communities through social action ensures they can actively contribute to mitigation and adaptation against the adverse effects of climate change.

      iv. Local governance and the concept of being answerable: Representation within establishments.

      v. Economic action: Establishing legal entitlements for natural resources such as government-owned land and public water bodies. SDG 15 (Life on Land): Securing access to natural resources sustainably allows communities to manage land and water resources to minimize environmental degradation.

    • Community-based approaches to building a resilient community are the best policy to reduce the vulnerability of coastal settlements. These people have lived in coastal areas for a long time and faced all the problems. They have their mechanism to combat disasters, especially floods and cyclones. So, community participation must be ensured during the implementation of any plan to reduce the vulnerability of the coastal settlement. Community participation in building resilient settlements to reduce cyclone dangers.

      i. Adopt coastal afforestation and embankment construction to safeguard human settlements from sea hazards. The community must plant and manage the mangrove forests and construct and maintain the embankment.

      ii. Connect community units within or outside the areas to build individual houses, implementing their indigenous knowledge.

      iii. Community members should be involved in community forestation, gardening, fishing, and cultivation in the abundant government land. This will increase their financial ability to maintain all community facilities.

      iv. The community people will determine land use patterns to prioritize safe habitats and potential resources, as the local people are very aware of their areas.

      v. Evaluate protections for different disaster levels and periods by the community people.

      vi. Community food banks, cooperative societies, women's empowerment, etc., should be ensured to build a resilient community.

    • Before building a resilient individual house, the settlement where the house is located should be resilient. The major components of a resilient coastal settlement in Bangladesh are the embankment, mangrove forest, shelter, road network, killas (raised earth mounds for sheltering domestic animals during cyclones), safe water supply system, etc. All the houses and other infrastructure should be constructed within this protected and secure location. Then, the coastal dwellings should be built as hazard-resilient structures that will be easy to construct, repair, cost-effective, and durable, ensuring minimal damage from tropical cyclones and avoiding evacuations for residents. As shown in Fig. 7, a modular house block layout integrates settlement planning with plantation strategies to enhance disaster resilience.

      Figure 7. 

      A modular house block considering its layout and plantation. Source: Author.

    • The study reveals that mangrove plantations along the coast significantly reduce the impact of cyclones and surges. The mangrove forest and embankment work like the primary defense mechanism that dissipates the thrust of cyclonic waves and prevents surge water entry. Road cum embankments are constructed above regular surge levels, ensuring inundation-free conditions. Public buildings like schools, mosques, and health centers should be built on the embankment's inner side, which is considered a cyclone shelter during emergencies.

      The embankment and the mangrove forest should be executed efficiently to work like a shield during a catastrophic cyclone. For example, during the super cyclone SIDR and Aila, the mangrove forest Sundarban acts like a wind barrier and reduces the impact of the first attack of storm surges. For Sundarban, the casualties and property damage were comparatively low. Both planned measures should be implemented through community participation and maintained by the community. The flow of the river, canal, and stormwater drainage during the monsoon should not be obstructed by the embankment. Mangrove forests should be dense enough to act as a protector during cyclones. As shown in Fig. 8, the combined system of mangrove forestation and embankments functions as a protective buffer for coastal settlements.

      Figure 8. 

      A safer settlement with mangrove forest, embankment and plantation. Source: Author.

    • To mitigate the detrimental effects of a storm on the residence, planting trees on the windward side is necessary, as they serve as windbreakers. Additionally, special consideration must be given to selecting tree species and placing plants according to their size and height. SDG 15 (Life on Land): Planting trees helps protect the land from wind damage and reduces the risk of soil erosion while providing carbon sequestration benefits. As shown in Fig. 9, a layered plantation with progressive height acts as a secondary wind barrier during cyclonic events.

      Figure 9. 

      Layers of plantation with height progression can act like a secondary wind barrier during the cyclone (source: author).

    • Individuals hesitate to evacuate their residences when storm alerts appear, primarily due to apprehensions of the potential loss of personal possessions and workforce. A bi-level dwelling with an elevated upper level above the ground level might offer protection during flood surges. Strategic placement of barriers around the 'Pashchati' helps mitigate wind pressure on the hip roof of the 'Ghar'. SDG 13 (Climate Action): Storm-resistant houses provide a critical buffer against extreme weather events, reducing vulnerability to climate change impacts. As shown in Fig. 10, a double-layered housing configuration provides vertical refuge during tidal surges while protecting household assets.

      Figure 10. 

      Double-layered house shelter during tidal surge (source: author).

    • Identifying indigenous technology and community knowledge in home building can effectively combat cyclones, and combining local knowledge with appropriate technology can prevent house destruction. The survey identified weak points in craftsmanship in a house, highlighting the need for additional recommendations to strengthen structural components and make it cyclone-resistant. The weakest foundation point is weakly anchored into the ground and is subject to direct burial of vertical posts, causing easy uplift during cyclone storms. Properly seasoned bamboo and wooden posts, higher corner posts, and secure roof structures and claddings can minimize damage in cyclone-affected areas. As shown in Figs 11 and 12, indigenous joinery techniques and roof-supporting details contribute significantly to the structural resilience of coastal houses.

      Figure 11. 

      Entry of a resilient house with indigenous joinery details found during field survey at Chakaria, Coxs' Bazar (source: Battling The Storm, Study on Cyclone Resistant Housing).

      Figure 12. 

      An Indigenous style of corner details and roof supporting buttresses found during field survey at Chakaria, Coxs' Bazar (source: Battling The Storm, Study on Cyclone Resistant Housing).

    • Livelihood diversification in Bangladesh involves rural families enhancing their living standards by diversifying their activities and social support capabilities through two primary methods.

      i. Integrating livelihood diversification. SDG 15 (Life on Land): Livelihood diversification reduces the pressure on land resources, ensuring that ecosystems can continue to provide essential services for future generations.

      ii. Integrated homestead farming (IHF) with disaster resilient habitat (DRH). SDG 13 (Climate Action): Homestead farming systems improve resilience to climate change by diversifying food sources, promoting sustainable agriculture, and reducing dependence on vulnerable farming systems.

      iii. Demonstration plots and farmer field schools: Establish community demonstration plots on public or khas land for testing and demonstrating the integrated system. Apply farmer field school practices in which lead farmers, who are usually women, serve as local extension agents on behalf of other households in the area.

      iv. Value chain and market connections: Help community organizations to conduct bulk marketing, storing, and transportation of excess vegetables, fruits, eggs, and fish. Connect to the surrounding growth centers, wholesale and institutional purchasers (schools, hospitals).

    • When primary operations fail to fulfill subsistence needs, diversifying income portfolios by engaging in both on- and off-farm activities can mitigate risk and provide local populations with viable alternative occupations.

      i. Saline tolerance rice cultivation

      ① BRRI and BINA have developed rice varieties that can tolerate salinity and yield excellent yields in Bangladesh's coastal belt.

      ② These varieties have potential yields of 6.5 t/ha.

      ii. Homestead vegetable gardening

      ① This can help fishermen generate income and alleviate poverty.

      ② Various types of vegetables can be cultivated around the homestead.

      iii. Large-scale community-based vegetable cultivation

      ① These crops can be cultivated on unused government land adjacent to the village.

      ② BARI has developed technologies for these cultivations with high yield capacity.

      iv. Rare, unseasonal crops, mixed fruits, and herbal plantation

      ① These can provide extra income for coastal fishing families.

      ② Saline-tolerant sunflower cultivation and summer tomato cultivation are examples.

      v. Rural non-farm home-based income generating activities

      ① These activities offer economic alternatives for landless coastal people.

      ② Rural women are interested in these activities due to their manageable scale and lower investment level.

    • IHF is a way to produce food around the homestead. It is a common practice in rural Bangladesh where the family of a house involves themselves in poultry, cattle, fish farming, and vegetable and fruit production in and around the homestead. An integrated homestead farm (IHF) improves food security and nutrition by allowing the production of vegetables, fruits, poultry, and fish. Excess produce can be sold, and a family can gain additional financial ability by saving extra money. This money can be used for other family needs like education and clothing, and as a reserve fund for future emergencies. IHF is an income-generating activity that women and children can also be involved in during their leisure time. It also helps to promote women's empowerment. As shown in Fig. 13, Integrated homestead farming functions as a sustainable livelihood approach that strengthens food security and household resilience.

      Figure 13. 

      Integrated homestead farming as a sustainable livelihood approach (SLA) (source: author).

    • i. To ensure land use and sustainable production of household;

      ii. To improve the food and nutrition security of the farm family;

      iii. To increase the income generation of farm families; and enhance women's empowerment.

    • i. Vegetable garden in fallow land adjacent to the house.

      ii. Fruit garden around the house.

      iii. Creeping vegetable cultivation on the roof of the house.

      iv. Vegetable garden in the kitchen yard/back yard.

      v. Vegetable garden on the trollies or the dyke of a pond.

      vi. Fish farming in a pond or a shallow water body.

      vii. Fishing in a tub.

      viii. Integrated fish and poultry farming.

      ix. Integrated fish and vegetable gardening.

      x. Cattle farming in the homestead.

      The total area of a homestead could be used as a food production unit.

    • To build a resilient coastal community, it is necessary to increase the people's capacity through community development. 'Community Development' is defined by the UN (United Nations) as the procedure by which all the community members take action to solve their problems. That means the resilient community should be able to identify their problems or challenges, get the opportunity to solve them themselves, and finally create a sustainable solution that will be sustainable for a long time. The capacity of a community could be enhanced by fostering that community. Capacity building is to be seen not as a one-time training but as a process that is a cyclical phenomenon:

      i. Training lessons: Climate risk awareness, the meaning of early warning, and the making of evacuation decisions. House construction (anchoring, bracing, roofing) that is resilient to cyclones (combining both native and enhanced engineering specifics). Small enterprise management, basic financial planning, and homestead farming.

      ii. Monitoring and evaluation: Community-defined indicators like: Areas of mangrove or homestead plantations set, number of households with strengthened roofs and plinths, number of women who participated in decision-making forums, and so on.

      To achieve this, consistent training, monitoring, and evaluation are essential for local communities, which can be achieved by creating educational platforms, identifying societal problems, improving climate risk management, and developing viable adaptation strategies.

    • Based on the comprehensive discussion and suggestions, it is evident that to establish a resilient community, it is essential to consider the factors above. Neither a sturdy building nor a cyclone shelter can adequately safeguard a coastal settlement from severe weather. The five fundamental factors discussed earlier might be considered to accomplish this. These are community empowerment, resilient settlements, resilient houses, sustainable livelihood, and capacity building. Community empowerment is the key factor that builds a resilient community. The coastal community should be a part of any decision-making process. Formal education. Financial stability and easy accessibility to resources could enhance community empowerment. The government should build a resilient settlement in the coastal areas by implementing mangrove afforestation and embankment construction. All the infrastructure initiated by the government should be resilient and sustainable. Houses in the coastal regions should be resilient by blending indigenous knowledge with modern technologies. It is necessary to ensure their economic self-sufficiency. Implementing home-based, community-based alternative, and sustainable livelihood alternatives can allow individuals to enhance their income and alleviate poverty and vulnerability. To ensure long-term financial stability and robust living conditions, it is necessary to implement sustainable income-generating initiatives at both the family and community levels.

      • The author confirms sole responsibility for the following: conceptualization, methodology, data collection, formal analysis, investigation, visualization, writing; original draft, writing review and editing, and overall manuscript preparation. The author has read and approved the final version of the manuscript.

      • The author will make the data that support the findings of this study available upon reasonable request. Field observations and community interviews because of the sensitivity of such methods in disaster-prone coastal areas cannot be released in their raw qualitative form. But on request, coded thematic summaries, non-identifiable datasets, and analytical tables have been used in the analysis.

      • The author would like to express their gratitude to all individuals and institutions who provided support and cooperation during the research process. No financial support or funding was received for this study.

      • The author declares that there is no conflict of interest.

      • Copyright: © 2026 by the author(s). Published by Maximum Academic Press on behalf of Nanjing Tech University. This article is an open access article distributed under Creative Commons Attribution License (CC BY 4.0), visit https://creativecommons.org/licenses/by/4.0/.
    Figure (13)  References (34)
  • About this article
    Cite this article
    Islam S. 2026. Retrieving coastal communities of Bangladesh from natural calamities in a changing climate: pathways toward the sustainable development goals. Emergency Management Science and Technology 6: e001 doi: 10.48130/emst-0026-0001
    Islam S. 2026. Retrieving coastal communities of Bangladesh from natural calamities in a changing climate: pathways toward the sustainable development goals. Emergency Management Science and Technology 6: e001 doi: 10.48130/emst-0026-0001

Catalog

    /

    DownLoad:  Full-Size Img  PowerPoint
    Return
    Return